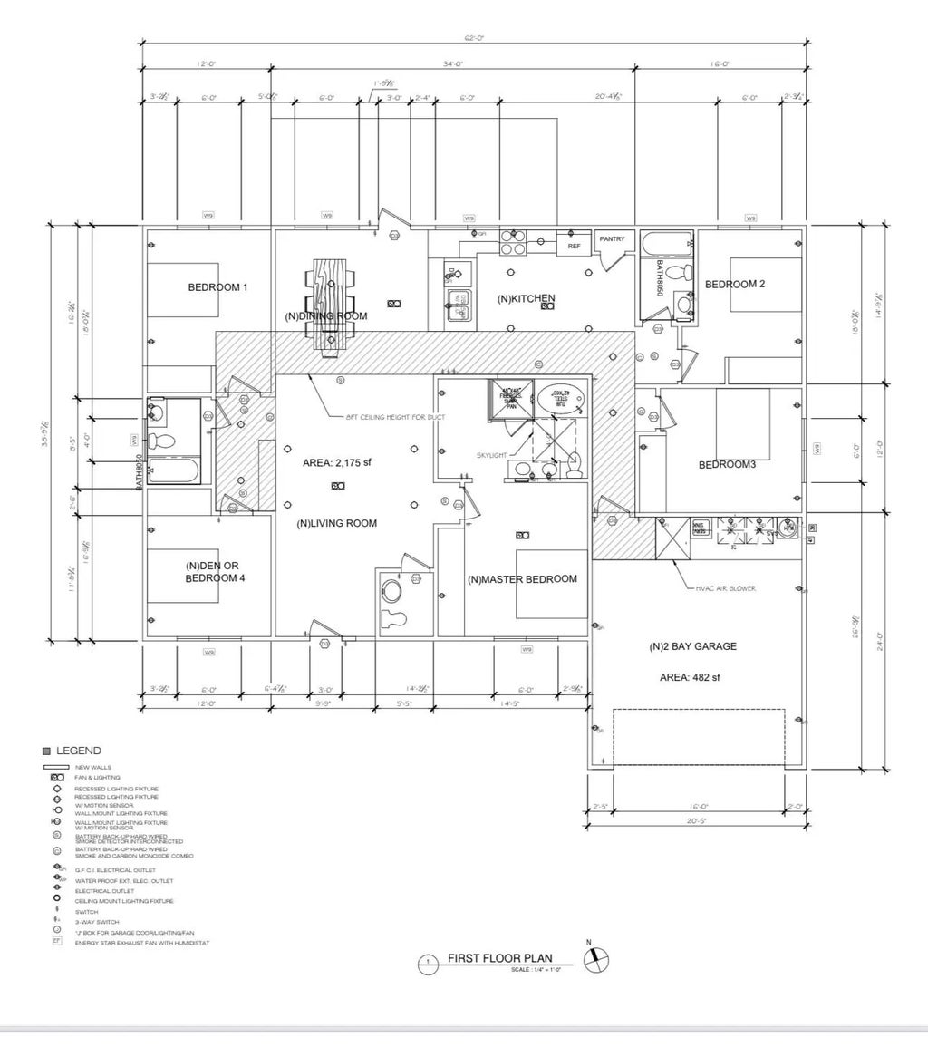
About Lot 285 Under Construction
New Construction, Modern Home with 5 Bedrooms and 2 Baths and over 2300 Sq Ft. Reserve it today and Buyer can pick out Neutral Final Finishes. Builder can help buy the loan rate down to make it more affordable, owner finance is possible , please call for details.
Features of Lot 285 Under Construction
| MLS® # | 219137467 | 
|---|---|
| Price | $599,000 | 
| Bedrooms | 5 | 
| Bathrooms | 2.00 | 
| Full Baths | 2 | 
| Square Footage | 2,300 | 
| Year Built | 2026 | 
| Type | Residential | 
| Sub-Type | Single Family Residence | 
| Style | Other | 
| Status | Active | 
Community Information
| Address | Lot 285 Under Construction | 
|---|---|
| Area | 340 - Desert Hot Springs | 
| Subdivision | Not Applicable | 
| City | Desert Hot Springs | 
| County | Riverside | 
| State | CA | 
| Zip Code | 92240 | 
Amenities
| Parking Spaces | 6 | 
|---|---|
| Parking | Other | 
| # of Garages | 2 | 
| View | None | 
| Has Pool | No | 
Interior
| Heating | Central | 
|---|---|
| Cooling | Other | 
| Fireplace | No | 
Exterior
| Lot Description | 7405 | 
|---|
Additional Information
| Days on Market | 5 | 
|---|---|
| Short Sale | No | 
| RE / Bank Owned | No | 
Listing Details
| Agent | Jeff Lander | 
|---|---|
| Office | Hacienda Agency, Inc. | 

